- Kitchener
- Build
- Single Detached
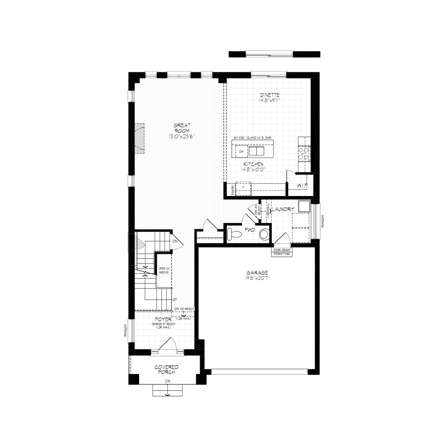
Located in the Harvest Park community in Kitchener, this spacious Net Zero Ready Single Detached Home boasts a thoughtfully designed living space.
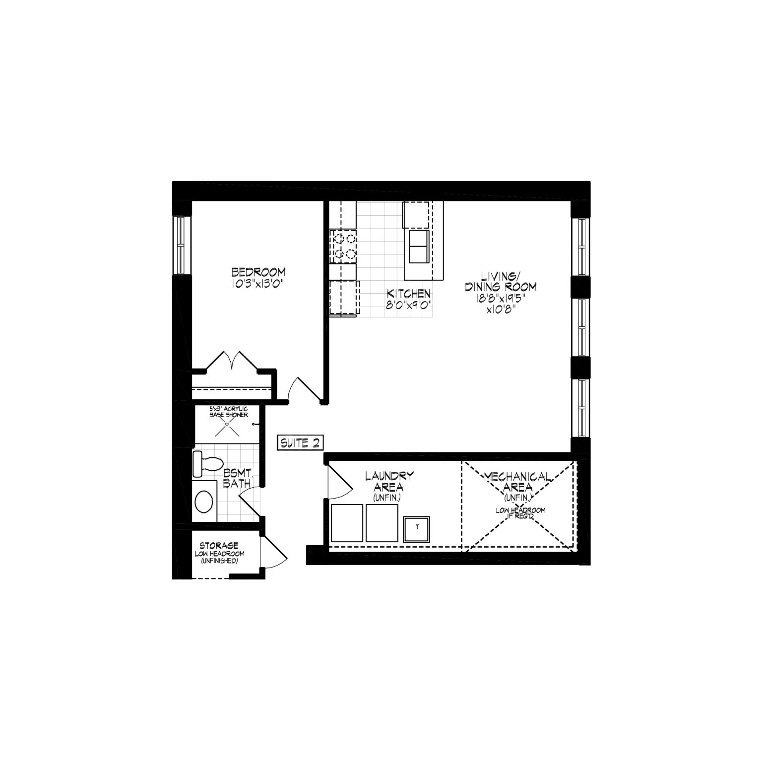
The main floor boasts a great room with hardwood flooring, a modern kitchen with hard surface countertops, a walk-in pantry, and a convenient laundry area. Upstairs, the second floor offers a principal bedroom with a walk-in closet and luxury ensuite, three additional bedrooms, a computer nook, and two more bathrooms. Upgrade your home with a finished basement or to a legal secondary suite — including a kitchen, living/dining area, bedroom with walk-in closet, 3-piece bathroom, and separate entrance.
Plus, benefit from the Activa difference. As a homebuilder serving the Region for over 40 years, we are proud to offer a home building journey second to none. Learn more about Activa here.
Amenities
Features
Stunning quality finishes come standard in your home, including:
- Quartz Countertops in the Kitchen
- Hardwood in the Great Room
- 9′ Ceilings on the Main Floor
- Large Egress Basement Windows
- Triple Pane Vinyl Windows
- ERV & High-Efficiency Furnace
- Luxury ensuite with a large walk-in shower and extended counter space
CLICK TO SEE ALL OF OUR STANDARD FEATURES!
Optional upgrades:
- Invest in a fireplace in your great room to add ambience + warmth to your space
- Upgrade your basement to a secondary suite with a sperate entrance + mechanical room, kitchen, living room/dining, bedroom, laundry, and a three-piece bathroom.
Net Zero Ready
Up to 80% better than building code. Learn more about Net Zero Ready homes.
Secondary Suite
Add a kitchen, living/dining area, bedroom, and 3-piece bathroom to your basement
Community Availability


