• Waterloo
  • Build
  • Single Detached

This spacious Net Zero Ready Single Detached Home boasts a thoughtfully designed living space.

The main floor showcases an open-concept layout with a great room, modern kitchen, and a dinette. It also includes a powder room and a convenient laundry area.

On the second floor, you’ll find a principal bedroom with a walk-in closet and luxury ensuite, along with three additional bedrooms, and a family room that can be transformed into an additional bedroom.

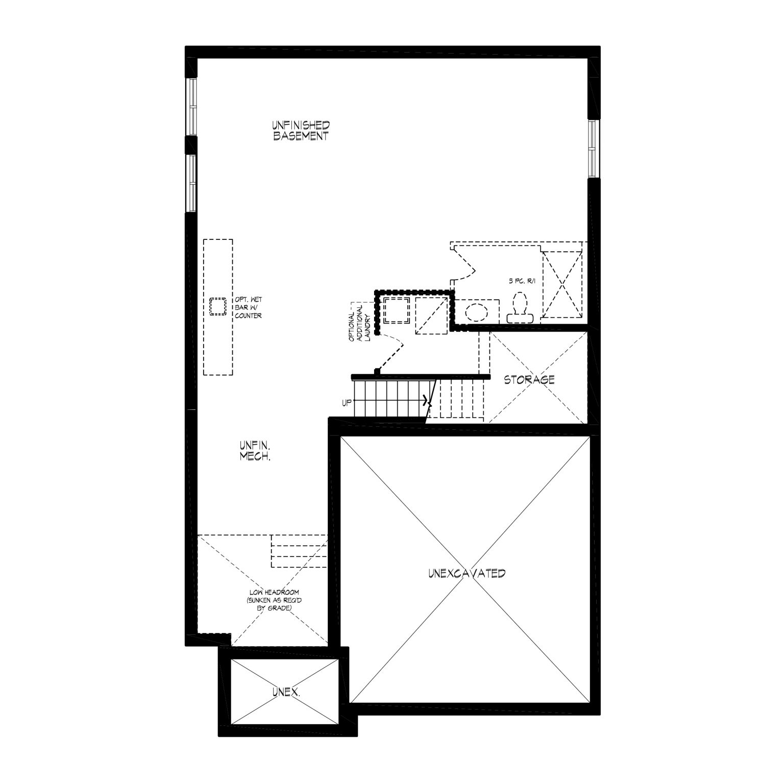
The basement provides a generous unfinished space with the option to add a bedroom, 3-piece bathroom, and laundry area, allowing you to maximize the home to suit your needs now or in the future.

Plus, benefit from the Activa difference. As a homebuilder serving the Region for over 40 years, we are proud to offer a home building journey second to none.

Amenities

2751Sq Ft.
4+1
2.5+1
2

Floorplans

Features

Stunning quality finishes come standard in your home, including:

  • Quartz Countertops in the Kitchen
  • Hardwood in the Great Room
  • 9′ Ceilings on the Main Floor
  • Large Egress Basement Windows
  • Triple Pane Vinyl Windows
  • ERV & High-Efficiency Furnace
  • Luxury Ensuite with a Freestanding Tub

Choosing a Contemporary elevation? Additional features come standard with these homes, including:

  • Black trimmed exterior windows
  • 8′ Black steel front door
  • Modern Chrome Plumbing Fixtures
  • + MORE

Optional Upgrades:

  • Move the laundry room to the second floor
  • Replace the family room with the fifth bedroom
  • Move the kitchen sink to the island. Plus, extend and turn the island to face the great room
  • Upgrade your basement to a finished area with a bedroom, laundry room, and a three-piece bathroom.

Net Zero Ready

Up to 80% better than building code. Learn more about Net Zero Ready homes.

Energy Star®

Up to 20% better than building code. Learn more about ENERGY STAR certified homes.

Community Availability

Vista Hills Logo

Available in our Vista Hills community