PLEASE NOTE: Homebuyers may pay less with proposed HST rebate. See price sheet for details.
- Kitchener
- Build
- Single Detached
Located in the Trussler West community in Kitchener, this spacious Net Zero Ready Single Detached Home boasts a thoughtfully designed living space.
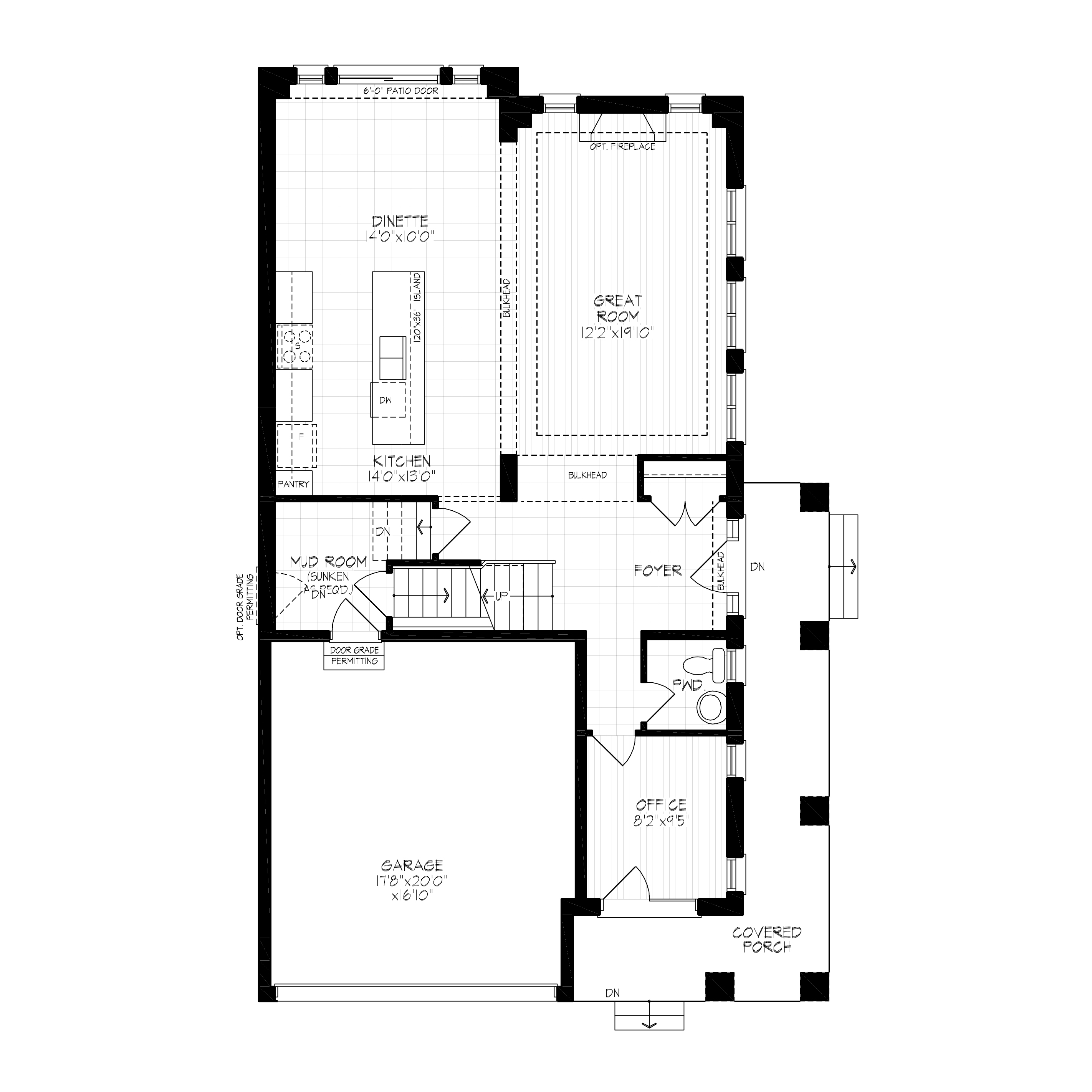
Step inside to a spacious foyer and enjoy the everyday convenience of a mudroom directly off the double-car garage, ideal for busy families, pet owners, and weekend adventurers. The open-concept main floor offers a seamless flow between the kitchen, great room, and dinette, with an extended kitchen island (72”x36”), perfect for gathering, prepping, and dining.
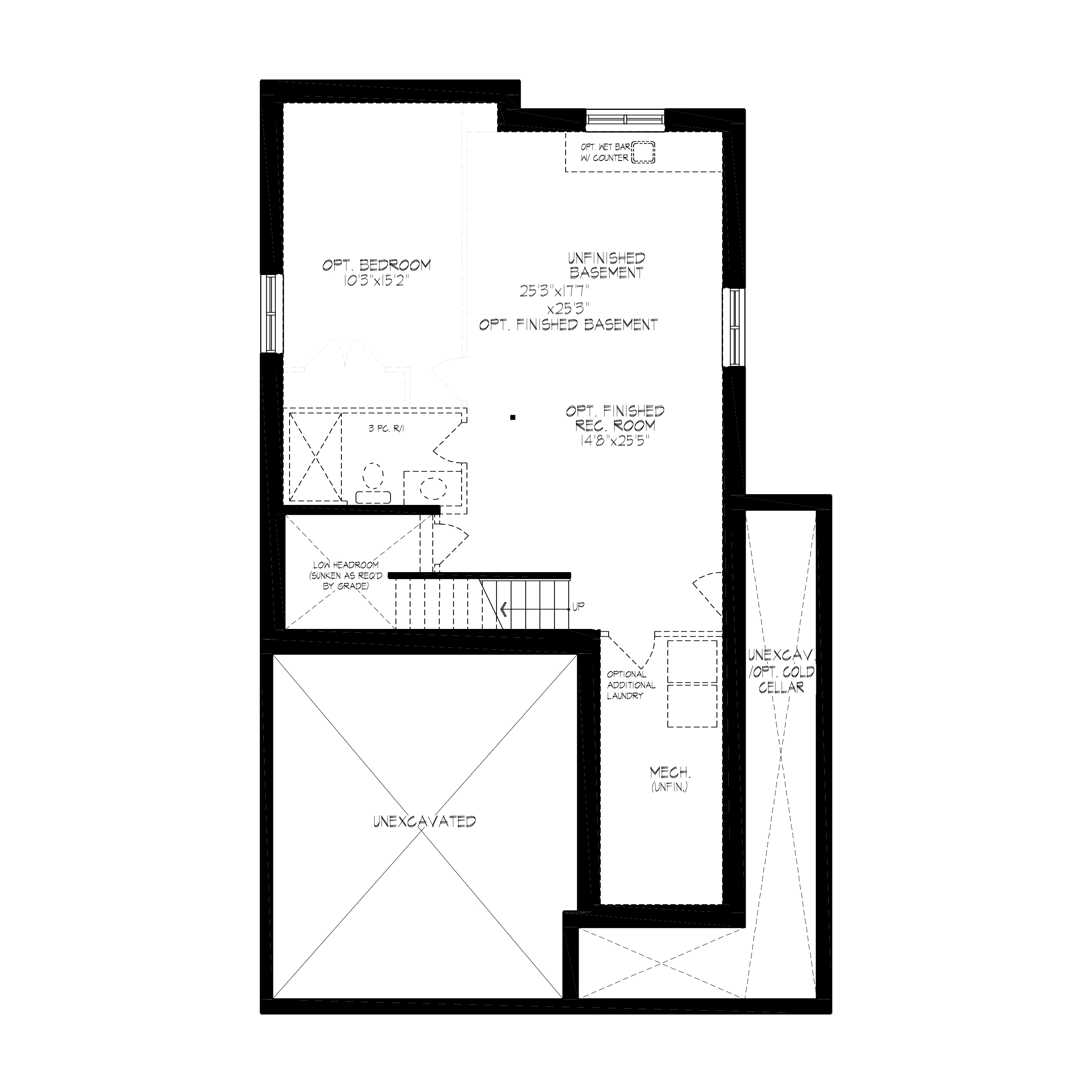
Upstairs, the Principal bedroom includes a spa-like ensuite, walk-in closet, and a private covered balcony to enjoy your morning coffee. You’ll also find an upper lounge for relaxing or studying, three additional bedrooms, a full bathroom, and a dedicated laundry room for added ease. Plus, upgrade to a finished basement with a rec room, bedroom, laundry, and a 3-piece bathroom
Plus, experience the Activa difference—over 40 years of trusted homebuilding in Waterloo Region.
Amenities
Features
Stunning quality finishes come standard in your home, including:
- Quartz Countertops in the Kitchen
- Hardwood in the Great Room
- 9′ Ceilings on the Main Floor
- Large Egress Basement Windows
- Triple Pane Vinyl Windows
- ERV & High-Efficiency Furnace
- Luxury Ensuite with a Freestanding Tub
Choosing a Contemporary elevation? Additional features come standard with these homes, including:
- Black trimmed exterior windows
- 8′ Black steel front door
- Modern Chrome Plumbing Fixtures
- + MORE
CLICK TO SEE ALL OF OUR STANDARD FEATURES!
Optional Upgrades:
-
- Transform your fourth bedroom into a larger secondary bathroom upstairs
- Optional fireplace in great room
- Upgrade to a finished basement with a rec room, bedroom, laundry, and a 3-piece bathroom
Net Zero Ready
Up to 80% better than building code. Learn more about Net Zero Ready homes.
Contemporary Elevation
Bold with clean lines and natural materials
Energy Star®
Up to 20% better than building code. Learn more about ENERGY STAR certified homes.



