- Waterloo
- Build
- Single Detached
Located in our Vista Hills community in Waterloo, this ENERGY STAR® Certified Single Detached home boasts a thoughtfully designed living space.
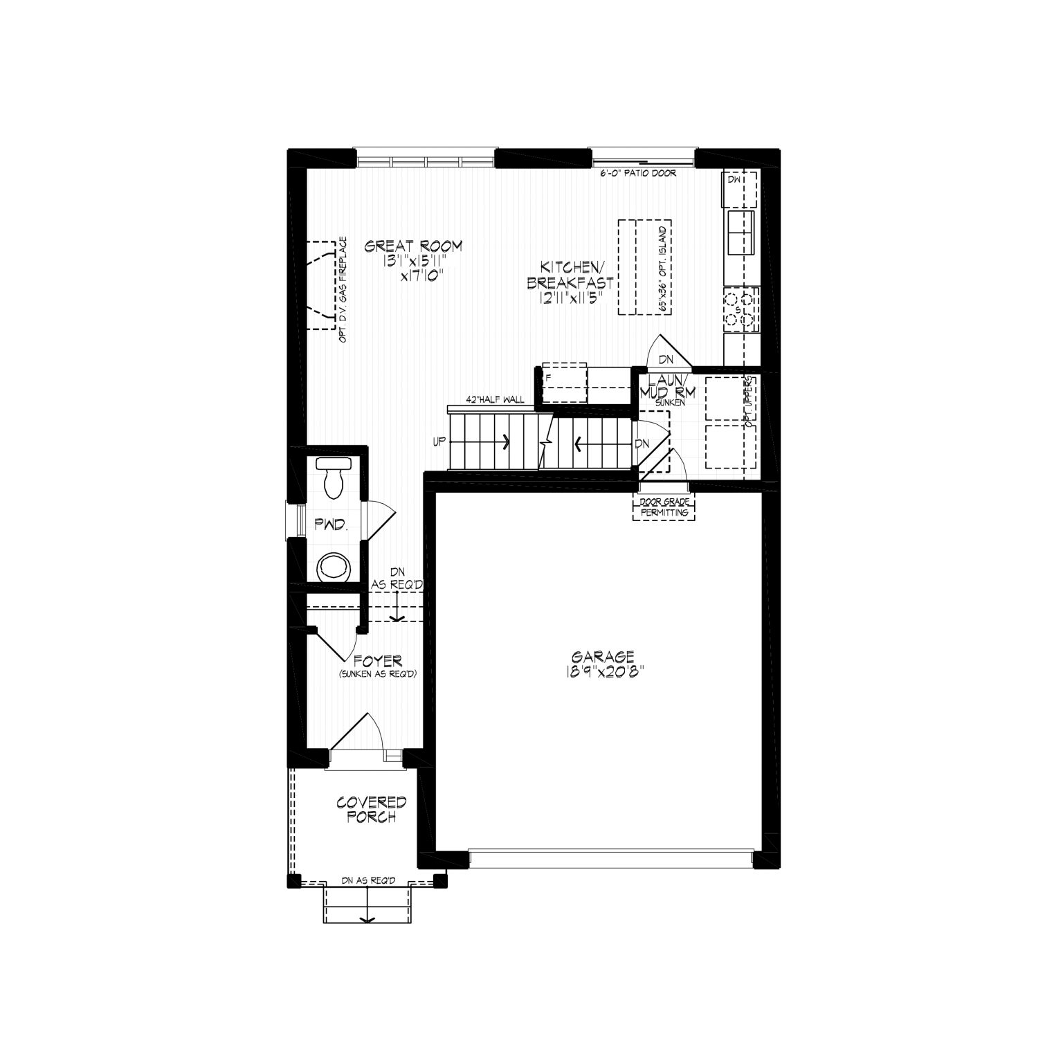
Step into a welcoming foyer with laminate flooring that flows throughout the main floor. A powder room sits just off the entryway, leading into a bright, open-concept great room and kitchen. A nearby laundry/mudroom connects directly to the double-car garage for added convenience.
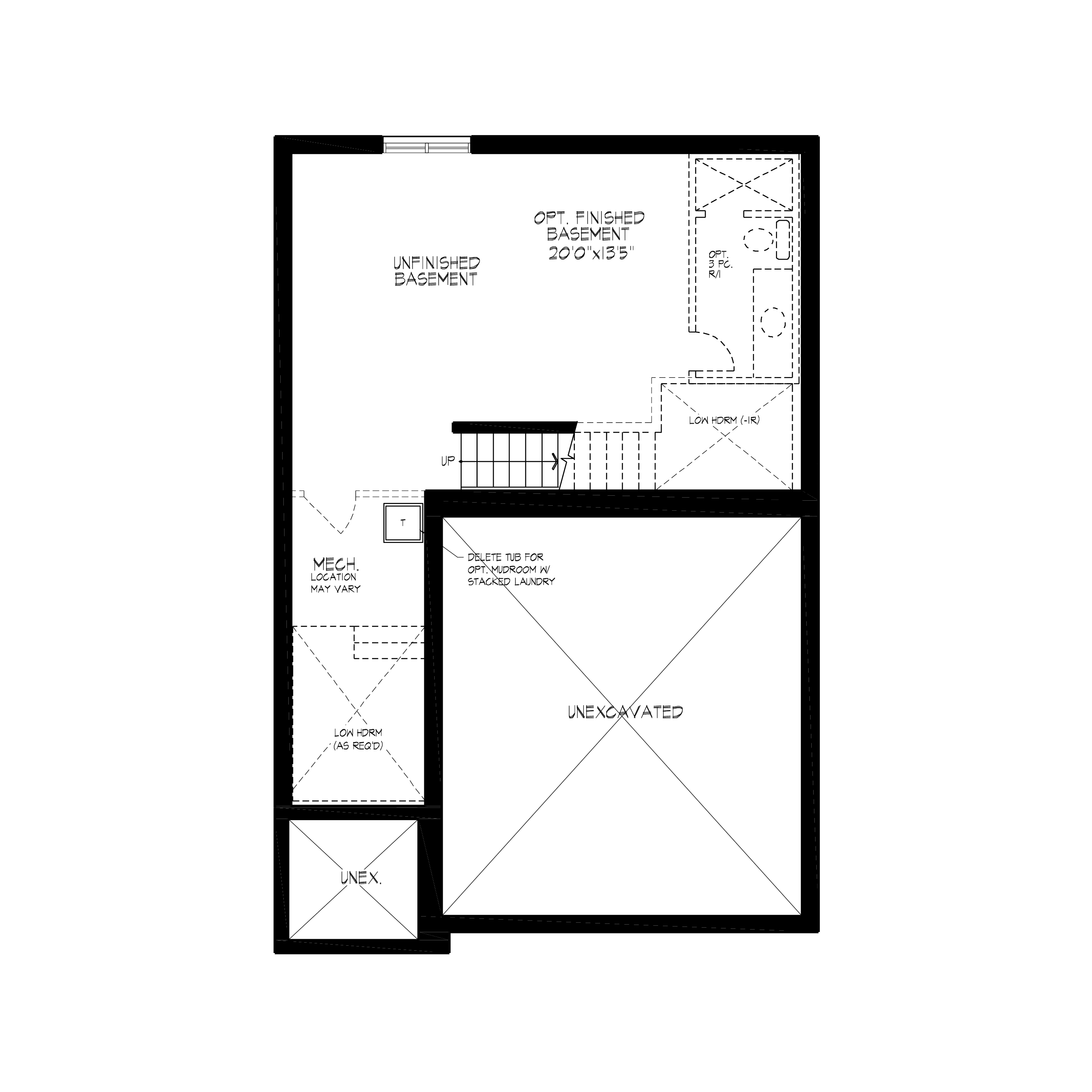
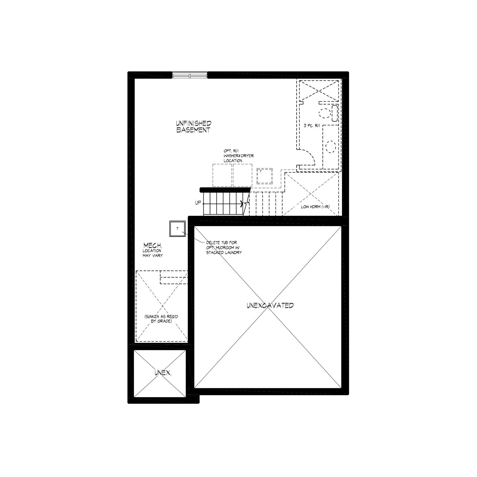
Upstairs, enjoy a private principal bedroom with a walk-in closet and ensuite. Two additional bedrooms and a flexible family room complete this level – with the option to convert the family room into a fourth bedroom. The unfinished basement includes a rough-in for a future three-piece bathroom, offering space to grow.
Choose from three exterior options, including Contemporary elevations with black exterior windows, upgraded hardware, modern faucets/fixtures, and a sleek lighting package.
Plus, benefit from the Activa difference. As a homebuilder serving the Region for over 40 years, we are proud to offer a home building journey second to none.
Click here to learn more about this new product line!
Amenities
Features
Additionally, quality finishes come standard in your home, including:
- Quartz Countertops
- 36″ Upper Cabinets in Kitchen
- 9’ Ceilings on the Main Floor
- Laminate Flooring Throughout Main Floor
- Ceramic Tile in Bathrooms
- Glass Shower in Principal Ensuite
- Asphalt Driveway
- ENERGY STAR Certified – built up to 20% better than building code
Optional upgrades:
- Add an extra bedroom for your growing family, with the option for an ensuite bathroom
- Increase space by finishing your basement and adding a 3-piece bathroom
- Add a gas fireplace to your great room
- Upgrade to include a kitchen island for entertaining
- Add a second floor laundry room
Contemporary Elevation
Bold with clean lines and natural materials
Energy Star®
Up to 20% better than building code. Learn more about ENERGY STAR certified homes.




