- Kitchener
- Build
- Single Detached
Located in the Trussler West and Harvest Park community in Kitchener, this spacious Net Zero Ready Single Detached Home boasts a thoughtfully designed living space.
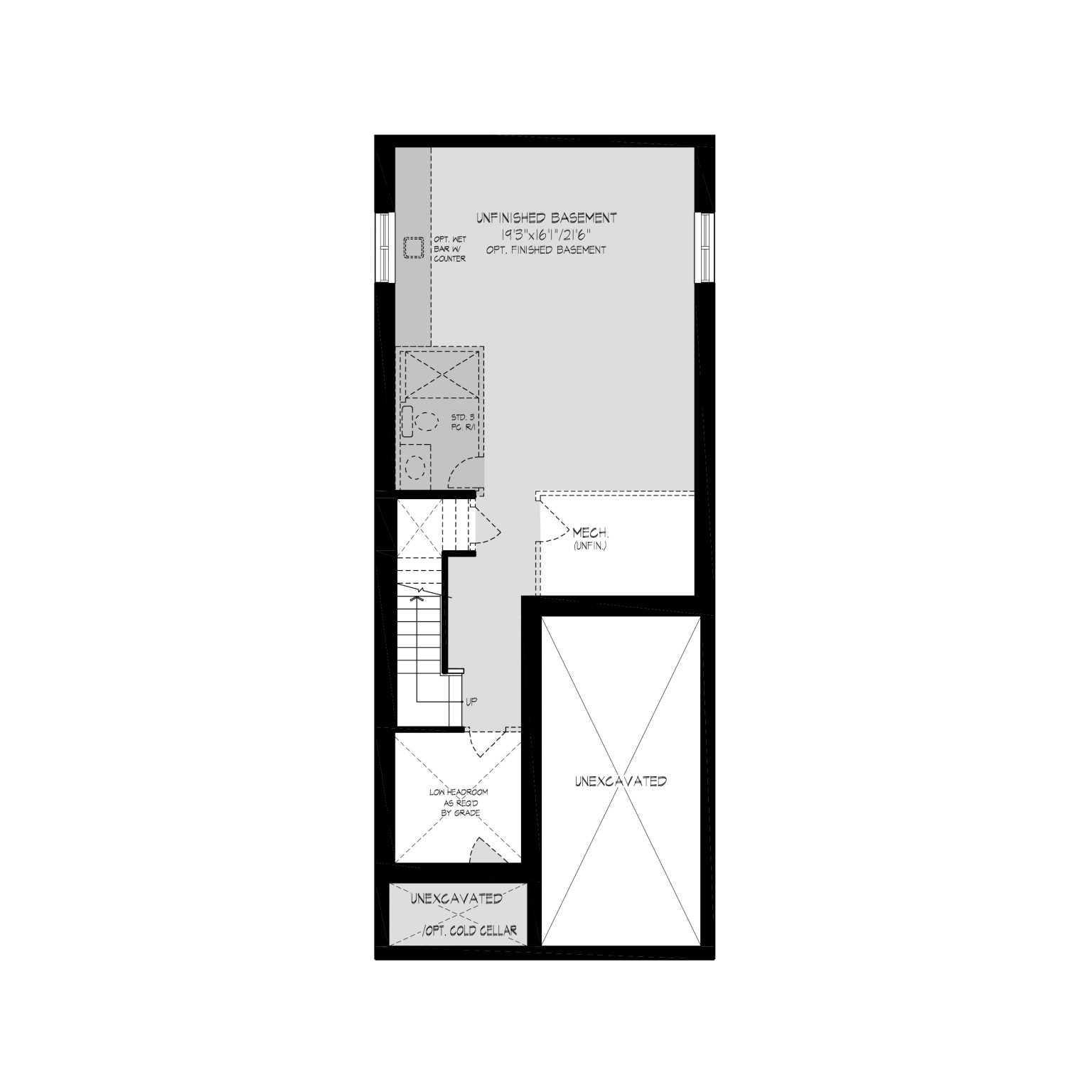
The main floor features a spacious great room with hardwood flooring, a modern kitchen with hard surface countertops, and 9′ ceilings, with large windows allowing for ample natural light. The second floor includes three well-appointed bedrooms, with the principal bedroom featuring an ensuite, plus a laundry room and an additional bathroom. The basement offers large egress windows and plenty of space for future finishing.
Plus, benefit from the Activa difference. As a homebuilder serving the Region for over 40 years, we are proud to offer a home building journey second to none.
Please note: The Modern Farmhouse elevation shown in the video/photos is no longer available. However, the floorplan layout featured remains unchanged.
Amenities
Features
Stunning quality finishes come standard in your home, including:
- Quartz Countertops in the Kitchen
- Hardwood in the Great Room
- 9′ Ceilings on the Main Floor
- Large Egress Basement Windows
- Triple Pane Vinyl Windows
- ERV & High-Efficiency Furnace
- PLUS, Net Zero Ready – your home is built 80% better than building code, and has the ability to generate as much energy as the average family of four consumes on an annual basis
Choosing a Contemporary elevation? Additional features come standard with these homes, including:
- Quartz Countertops in the Kitchen
- Modern Chrome Plumbing Fixtures
- + MORE
Contemporary Elevation
Bold with clean lines and natural materials
Net Zero Ready
Up to 80% better than building code. Learn more about Net Zero Ready homes.
Community Availability


















