- Kitchener
- Build
- Single Detached
Located in the Harvest Park community in Kitchener, this spacious Net Zero Ready Single Detached Home boasts a thoughtfully designed living space.
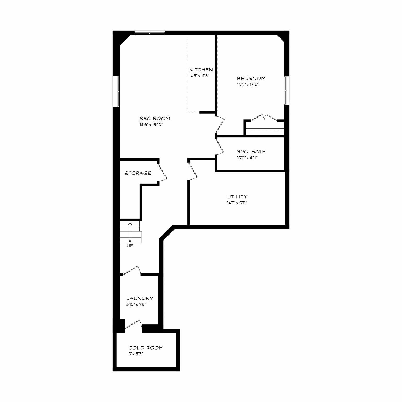
Welcome to 50 Jacob Detweiller Drive, a spacious 3,275 sq. ft. home. The main floor showcases hardwood flooring in the great room, a modern kitchen with hard surface countertops, 9′ ceilings, and a spacious island. Upstairs, the second floor includes a principal bedroom with an ensuite and walk-in closet, three additional bedrooms, a main bathroom, and a convenient laundry room. The basement is finished as fully-equipped secondary suite with large egress windows, kitchen, rec room, 3-piece bathroom, and bedroom with walk-in closet.
Plus, benefit from the Activa difference. As a homebuilder serving the Region for over 40 years, we are proud to offer a home building journey second to none. Learn more about Activa here.
Amenities
Features
Stunning features & finishes come standard, including:
- Hard Surface Countertops in the Kitchen
- Hardwood in the Great Room
- 9′ Ceilings on the Main Floor
- Large Egress Basement Windows
- Triple Pane Vinyl Windows
- ERV & High-Efficiency Furnace
Upgrades in this home include:
- 8’ft tall interior doors through-out main and second.
- Factory-finished stained oak stairs main to second
- Upgraded quartz countertops to the kitchen and all bathrooms.
- Full height 45 1/2″ tall upper cabinets to the kitchen. Custom kitchen with wall-mount oven and microwave, cooktop, wood range hood, light valance, corner glass upper cabinet to name a few. Extended kitchen island.
- Floating vanity to the powder room and ensuite.
- 60″ linear electric fireplace.
- Upgraded faucets and fixtures in all bathrooms.
- Potlights in kitchen, dinette and great room.
- Upgraded light package throughout.
- Vinyl flooring in the basement.
- Upgraded floor and wall tiles throughout.
- Upgraded to engineered hardwood to the main and second floor. Wiring for future CCTV. Humidifier
Contemporary Elevation
Bold with clean lines and natural materials
Energy Star®
Up to 20% better than building code. Learn more about ENERGY STAR certified homes.
Net Zero Ready
Up to 80% better than building code. Learn more about Net Zero Ready homes.
Secondary Suite
Add a kitchen, living/dining area, bedroom, and 3-piece bathroom to your basement
Community Availability
































































